+91 80 4012 4235 | +91 80 4012 4439
Oceanus Dwellings (P) Ltd

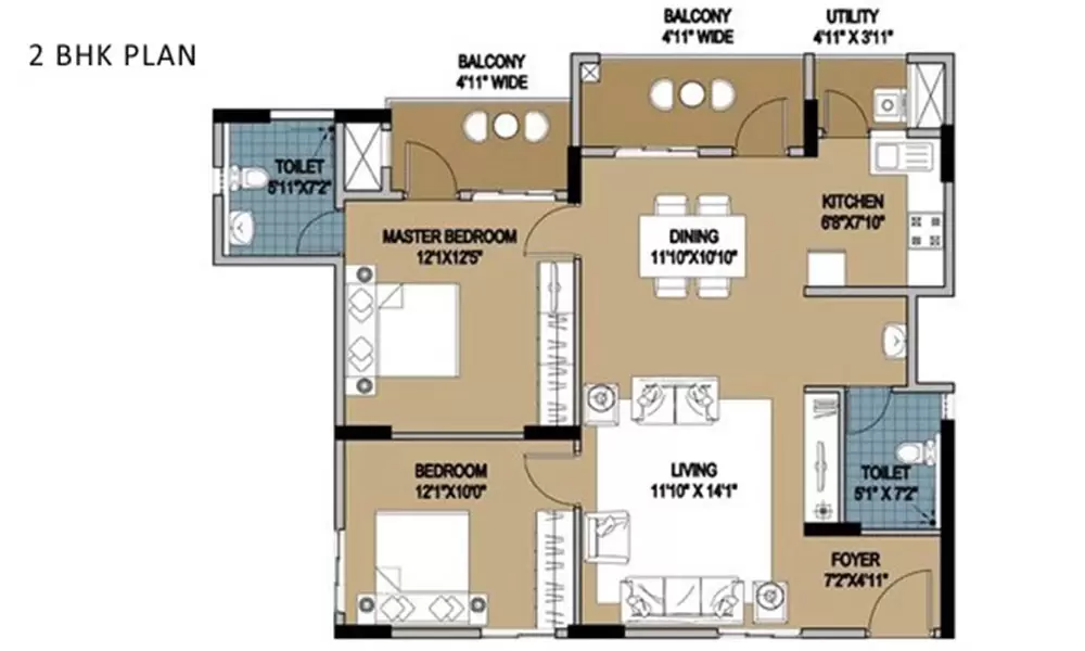
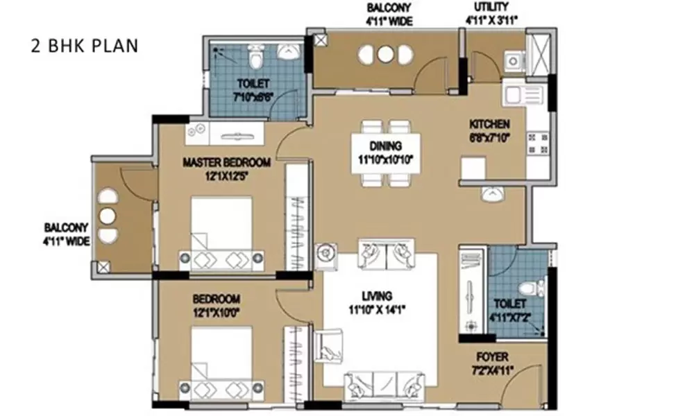
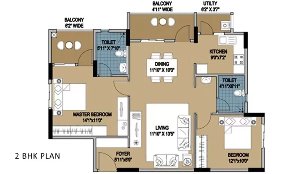
Soon, your lifestyle will turn others green. With envy, of course!! Oceanus Greendale Phase - II, a magical land where everything is perfect and peaceful. As you walk into this mystic place you will encounter the magic of life itself. Where everyday will bring with it awe and amazement in the form of easy living, and fulfillment of every dream. Yet another land mark, near to Oceanus Greendale Phase I and Oceanus Redrock, Located at off Banaswadi outer ring road, towards Ramamurthy Nagar. Here, you can choose 2/3 BHK luxury apartments set amidst lush greenery. Add to this premium comforts and amenities, and you have always dreamed of.